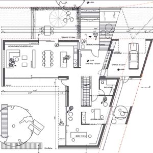
Aufgabe: Einfamilienhaus mit Büro Typologie: Wohnungsbau Energiestandard: Niedrigenergie Zeitraum: 2010 Bauherr: privat Leistungsphasen: 1